5 kms to Melbourne CBD
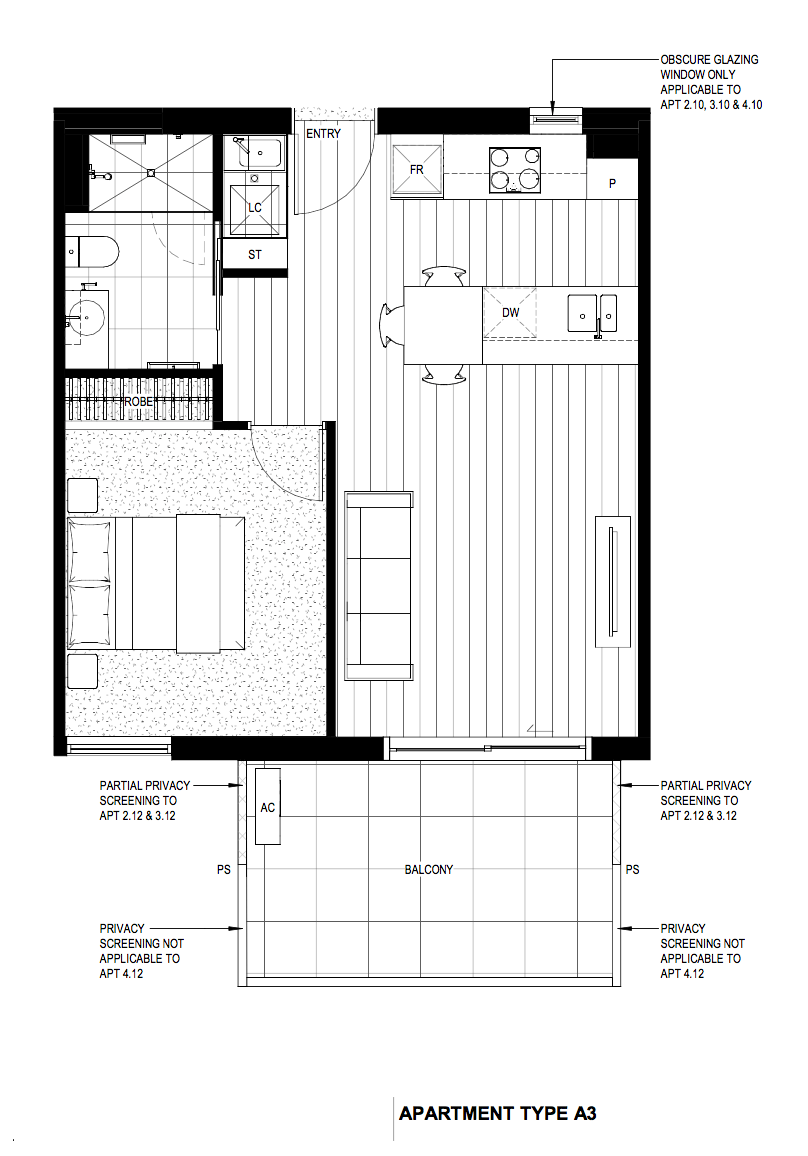
1 bed, 1 bath, 1 parking $430,000
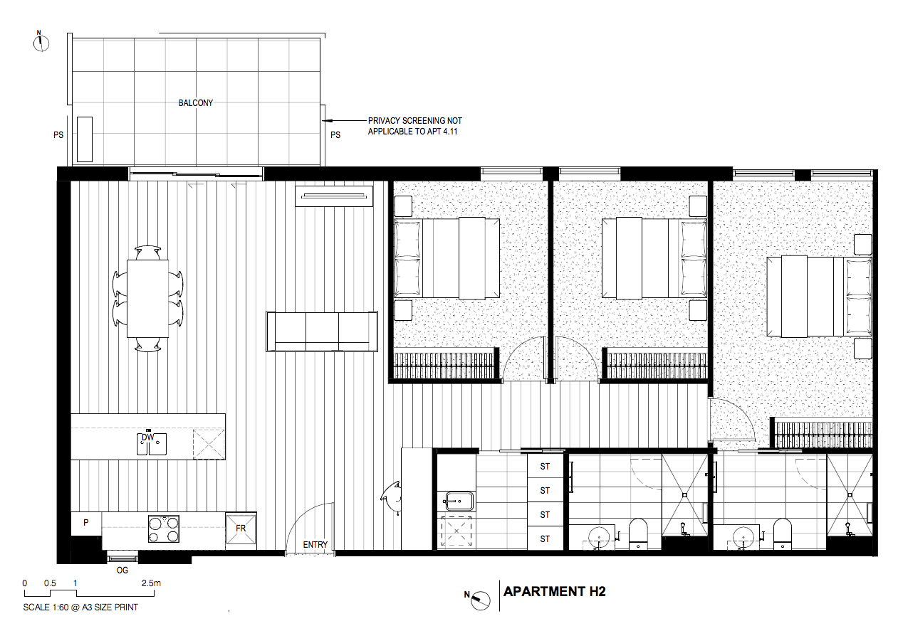
3 beds, 2 baths, 2 parking $870,000
with incentives!
Great rental estimates in low vacancy location
Completion end 2020
Despite the negative press about Melbourne property, there are pockets of the city that are standouts. They’re meeting all our selection criteria:
- Growing population, high rental demand, low vacancy inner city location
- Award-winning developer and beautifully designed building
- Good price and great rental estimates
Location
This property is in Ascot Vale, one of Melbourne’s long-established suburbs with strong connections to some of the cities most famous landmarks, education facilities, sport and entertainment venues. It’s just 5kms from Melbourne CBD and 20-minute drive from the airport. It’s connected to the CBD by tram, train and bus with the tram stop at the front door and train station just 9 minutes walk away.
The infrastructure investment in and around Ascot Vale will exceed $2.1 billion by 2034. Private investment is following the government investment and the area is undergoing gentrification and we’re seeing some great restaurants, cafes and bars emerging.
The Royal Melbourne Hospital district is close by, as are the University of Melbourne and Victoria University. You’re minutes from the home of the Melbourne Cup, Flemington Racecourse and the Melbourne Zoo, Royal Park Golf Course and Highpoint Shopping Centre.
Developer & design
The developer of this property has made headlines for all the right reasons. They’re an award-winning, well-respected company that we’ve worked with for years.
They pay attention to the little things and build beautifully designed, well-constructed homes.
Kitchens are designed for effortless entertaining and everyday ease, with stone benchtops, terrazzo splashbacks and designer tapware. The dual-level island bench is a flexible space for eating, working or cooking. Quality fittings include the elegant Miele induction cooktop and oven, and the integrated Asko fridge/freezer.
With timber floors in the living areas, soft wool carpets in the bedrooms, double glazed windows, natural light, sheer blinds with block out window coverings in the bedrooms, soft lighting, built in robes and deep balconies, these apartments will make beautiful, comfortable homes for the residents.
There is also a communal rooftop courtyard with barbeque area for residents to enjoy.
Price
One bedroom apartment with one bathroom, one car park with storage, 51 sqm internal space and 11 sqm external is just $430,000. Rental estimate is great at $380 per week.
Three bedroom apartment with two bathrooms and two car parking spaces with storage, 120 sqm internal space and 13 sqm external is just $870,000. Rental estimate is $660 per week.
We have negotiated incentives with the developer that we will confirm with interested investors.
There are other options available, but these will give you an idea of price points.
What’s next?
If this development interests you, please get in touch and we can share more details and discuss whether it meets your investing strategy.
This development is scheduled for completion at the end of 2020, so it’s perfect if you’ve got our deposit ready to go and need some time before settlement.
Please let me know if you want to know more about this beautiful property.
Michael Rogers
0416 049 226
Email




